
MPM4700型智能液位变送器是一款全不锈钢设计全密封潜入式智能化液位测量仪表。该产品选用高稳定、高可靠性压阻式OEM压力传感器及高精度的智能化变送器处理电路,采用精密数字化温度补偿技术及非线性修正技术,是一款高精度液位测量产品。防水电缆与外壳密封连接,通气管在电缆内,可长期投入液体中使用。一体化的结构和标准化的输出信号,为现场使用和自动化控制提供了方便。该产品以两线制方式工作,体积小巧、重量轻、易安装,使用方便,可直接替代两线制模拟4~20mADC输出变送器。

产品特点
•4~20mADC两线制电流输出;
•采用数字温度补偿及非线性修正技术;
•具备RS485通讯接口或HART®协议(可选);
•支持组网应用;
•全不锈钢结构设计,体积小,重量轻;
•特殊要求可定做,适应各种场合应用;
•产品已取得RoHS认证。
性能参数
|
基本量程(mH2O) |
3.5 |
7 |
10 |
20 |
35 |
70 |
100 |
200 |
|
过压(mH2O) |
5 |
10 |
15 |
30 |
50 |
100 |
150 |
300 |
|
注:量程缩放最小为基本量程的1/5 |
||||||||
|
综合精度①② |
±0.075%FS(最小) ±0.1%FS(典型) ±0.25%FS(最大) |
|
长期稳定性 |
±0.2%FS/年 |
|
补偿温度③ |
|
|
工作温度 |
|
|
存储温度 |
|
|
供 电 |
(8~28)VDC(RS485接口型),(12~30)VDC(HARTâ型) |
|
输 出 |
(4~20)mADC |
|
RS485接口/HART®协议,可选 |
|
|
负载能力 |
(4~20)mADC输出,(U-8V/12V)/ |
|
RS485总线可挂接99个变送器 |
|
|
电气连接 |
DIN43650 4芯插头(内置RS485插座) |
|
7芯插头座(适用于现场RS485接口输出) |
|
|
Φ |
|
|
绝 缘 |
100MΩ/50V |
|
振 动 |
|
|
冲 击 |
|
|
防护等级 |
IP68 |
|
介质兼容性 |
膜片:不锈钢 |
|
壳体:不锈钢1Cr18Ni9Ti |
|
|
O形密封圈:氟橡胶 |
|
|
重 量 |
约 |
①综合精度:包含非线性、迟滞、重复性及温度误差。
②3.5mH2O和7mH2O的液位变送器,经过量程缩放后,综合精度典型值为±0.5%FS。
③特殊温度范围可与厂家协商。
外形结构


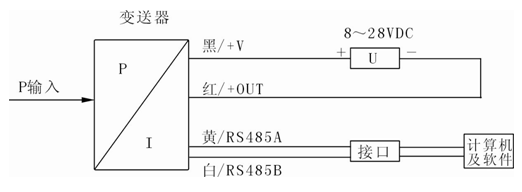
电气连接
变送器与外部通过电缆或接线盒进行电气连接。
|
导线颜色 |
端子号 |
功能定义 |
|
黑线 |
2 |
+V |
|
红线 |
1 |
OUT/GND |
|
白线 |
4 |
RS485B |
|
黄线 |
3 |
RS |

a)、二线制4~20mADC输出电气连接方法如下图所示。

b)、RS485接口型变送器用于RS485通讯时的电气连接方法如下图所示。

c)、HART协议型变送器与手操器连接的两种接线方式如下图所示。


辅助软件
a)、RS485接口型变送器软件
MS Setonline软件
通过RS232/485转换模块,用于对RS485接口型变送器读取内部基本信息(包括液位量程和温度补偿范围、版本等),显示实际液位值、设置新零点、程控设置模拟输出、设置仪表地址等。

b)、HART协议型变送器软件
MS-C100A软件
通过MS-HART375转换模块,客户可对HART协议型变送器进行软件调试及校准。

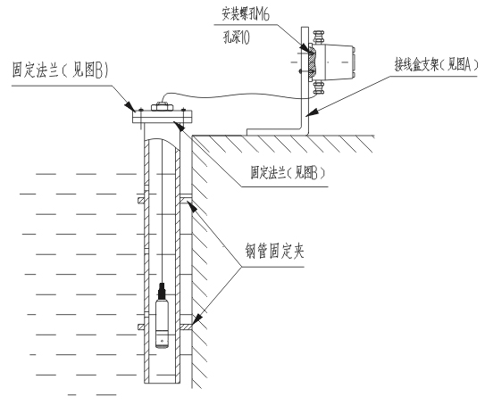
应用示例



选型指南
|
MPM4700 |
型智能液位变送器 |
||||||
|
量程 |
测量范围(mH2O) |
||||||
|
[0~XmH2O]L |
X为实际所需量程,L:为电缆线长度,L-X=(1~2)m |
||||||
|
代号 |
输出信号 |
||||||
|
E |
4~20mADC |
||||||
|
R4 |
RS485通讯接口 |
||||||
|
H |
HARTâ通信协议 |
||||||
|
代号 |
结构材料 |
||||||
|
隔离膜片 |
接口 |
壳体 |
|||||
|
22 |
不锈钢316L |
不锈钢 |
不锈钢 |
||||
|
24 |
不锈钢316L |
不锈钢316L |
不锈钢316L |
||||
|
代号 |
附加功能 |
||||||
|
C1 |
M20×1.5外螺纹压力接口,端面密封 |
||||||
|
C5 |
M20×1.5外螺纹压力接口,水线密封 |
||||||
|
Y |
接线盒 |
||||||
|
F1 |
固定法兰 |
||||||
|
MPM4700 |
[0~10mH2O] |
ER4 |
22 |
Y |
完整的型号规格 |
||
选型提示
1、电缆材质在未特殊注明要求的情况下,按聚乙烯供货。
2、特殊要求,敬请与本公司商洽,并在订单中予以注明。
下一篇:浮标液位计的工作原理及结构
版权所有 Copyright(©)2009-2011 江苏力科仪表有限公司
电话号码:0517-86909222 商务热线:15305232668 传真:0517-86909221
地址:江苏省金湖县工业园
技术支持:易品网站建设专家 苏ICP备13047422号-1