
| 磁性浮子液位计测量管的尺寸与安装 | |||||||||||||||||||||||||
| (见图7)中压、高压;中温、高温请向制造厂索取 | |||||||||||||||||||||||||
|
|||||||||||||||||||||||||
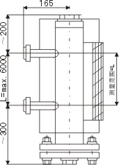
| 磁性浮子液位计测量管安装形式 | |||||||||||||||||||||||||
| 见图8 | |||||||||||||||||||||||||
![]() 图8 |
|||||||||||||||||||||||||
| 远距离数据传送系统 | |||||||||||||||||||||||||
| 除了就地指示器外,HR-FB还可以安装一个电远传系统。型号规格详见型号代码。 电远传系统由安装在测量管上的远传机构构成。远传机构由电路、安装管、壳体构成,电路部分主要有簧片接触器和电阻,当浮力在测量管中随液位变化时,浮子内磁系统会激励簧片接触器动作,从而使整串电阻器的阻值随液位的变化而变化。 电阻器被安装在连接壳体内的信号转换器转换为4~20mA的电流信号。如果两线制信号转换器直接与14~36VDC相连,UHZ-52/Exi和UHZ-52/Exd可以与电阻串联工作。UHZ-52Exi型必须配安全栅。 UHZ-52/Exi同数字显示仪相连,液位就可以通过一个4位数字的LED显示器显示出来。 |
|||||||||||||||||||||||||
上一篇:投入式液位计的接线与技术参数
下一篇:磁翻转液位计远传的来历与发展
版权所有 Copyright(©)2009-2011 江苏力科仪表有限公司
电话号码:0517-86909222 商务热线:15305232668 传真:0517-86909221
地址:江苏省金湖县工业园
技术支持:易品网站建设专家 苏ICP备13047422号-1